Zum Hauptinhalt springen Zur Suche springen Zur Hauptnavigation springen

Bis zu 10 Jahre Produktgarantie

Aufmaß- und Montageservice

10 Jahre Nachkaufgarantie

Hersteller mit eigener Produktion

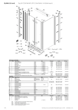
Produktinformationen "Elana 2.0 rund Drehfalttür, Anschlag links, für Seitenwand/Badewannenseitenwand neben der Wanne"

  • 6 mm Sicherheitsglas
  • zur Kombination mit einer Elana 2.0 Seitenwand (Typ 2512) oder Badewannenseitenwand neben der Wanne (Typ 2515)
  • abgerundete Profile
  • filigranes Design für maximale Transparenz
  • 4-fach Hebe-Senkmechanismus sorgt für leichtes Öffnen und Schließen der Türen
  • Anschlag links (auch erhältlich mit Anschlag rechts: Typ 2418)
  • optional: CER+ Beschichtung für Echtglas

 

Maßangaben:

Ausführung  Produktmaß   Wanneneinbaumaß  Fliesenmaß 
(Glasmitte auf Fuge)
 Einstiegsbreite  Höhe
zzgl. 35 mm Stabilisator
 800 765-785 780-800 750-770 679  2000
 900 865-885 880-900 850-870 779  2000
 1000 965-985 980-1000 950-970 879  2000
 Sondermaß 550-1200        max. 2200

Alle Maße in mm.