Zum Hauptinhalt springen Zur Suche springen Zur Hauptnavigation springen

Bis zu 10 Jahre Produktgarantie

Aufmaß- und Montageservice

10 Jahre Nachkaufgarantie

Hersteller mit eigener Produktion

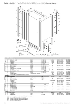
Produktinformationen "Elana 2.0 eckig Badewannenseitenwand, Anschlag links, für DFT/DT und DT+FT neben der Wanne"

  • 6 mm Sicherheitsglas
  • zur Kombination mit Elana 2.0 eckig Drehfalttür (Typ 2470), Drehtür (Typ 2466), Drehfalttür mit Festteil (Typ 2472) und Drehtür mit Festteil (Typ 2468)
  • Badewannenseitenwand wird neben der Wanne montiert und überlappt 30 mm mit dem Badewannenrand
  • eckiges Profil und eckiger Stabilisator
  • filigranes Design für maximale Transparenz
  • Anschlag links (auch erhältlich mit Anschlag rechts: Typ 2520)
  • optional: CER+ Beschichtung für Echtglas

Maße

Angaben in Milimeter (mm)
Höhe
1750
Produktmaß von
714
Produktmaß bis
734
Wanneneinbaumaß Links
730-750
Maß /Ausführung Links
750
Auflageflächen der Wandanschlussprofile links
28
Auflageflächen der Wandanschlussprofile rechts
28