Zum Hauptinhalt springen Zur Suche springen Zur Hauptnavigation springen

Bis zu 10 Jahre Produktgarantie

Aufmaß- und Montageservice

10 Jahre Nachkaufgarantie

Hersteller mit eigener Produktion

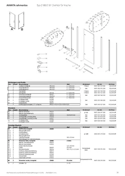
Produktinformationen "Avanta Drehtür für Nische, Anschlag rechts, rahmenlos"

  • 8 mm Sicherheitsglas
  • inkl. Aufmaß, Lieferung & Montage! - Finden Sie hier den Bestellablauf
  • Flächenbündige, pendelbare Scharniere
  • Türöffnung nach innen & außen
  • rahmenlose Drehtür (Anschlag rechts)
  • für den bodengleichen, schwellenfreien Einbau geeignet
  • CER+-Beschichtung gegen Aufpreis möglich

 

Eigenschaft Werte
Abtrennungsart: Nische
Farbe: Hochglanz verchromt
Glas: Bella C, Bronce getönt, DualPlus Klarglas, Intima, Klarglas hell, Lines, Mastercarre, Satiniert, Spiegelglas, Terrazzo, grau getönt
Glasstärke: 8 mm
Maß: Sondermaß
Serienname: Avanta
Türsystem: Drehtür

Maße

Angaben in Milimeter (mm)
Höhe
400-2200
Sondermaß Breitenmaß Links
600-1000